Pearl Currents

“Parametric Design Inspired by Kuwaiti’s pearl legacy ”

This project explores a parametric redesign of an existing commercial building, inspired by Kuwait’s traditional pearl diving heritage and the organic movement of ocean swells. The goal is to reimagine the architectural language of the building using modern computational design techniques while honoring cultural and environmental roots.

In addition to the architectural enhancements, a comprehensive MEP (Mechanical, Electrical, and Plumbing) component was developed. The HVAC and plumbing systems were designed to integrate seamlessly with the new ceiling structures and to ensure thermal comfort, air quality, and efficient water management, aligning with sustainable and functional design goals.

The Parametric Design

Facade Elevation “Open Facade”

Facade Elevation “Closed Facade”

Top View

Side View

Facade Details

Curtain Wall Design

The facade design is breathable and allow air circulation through the three different types of curtain panels used the sliding, awing, and fixed windows

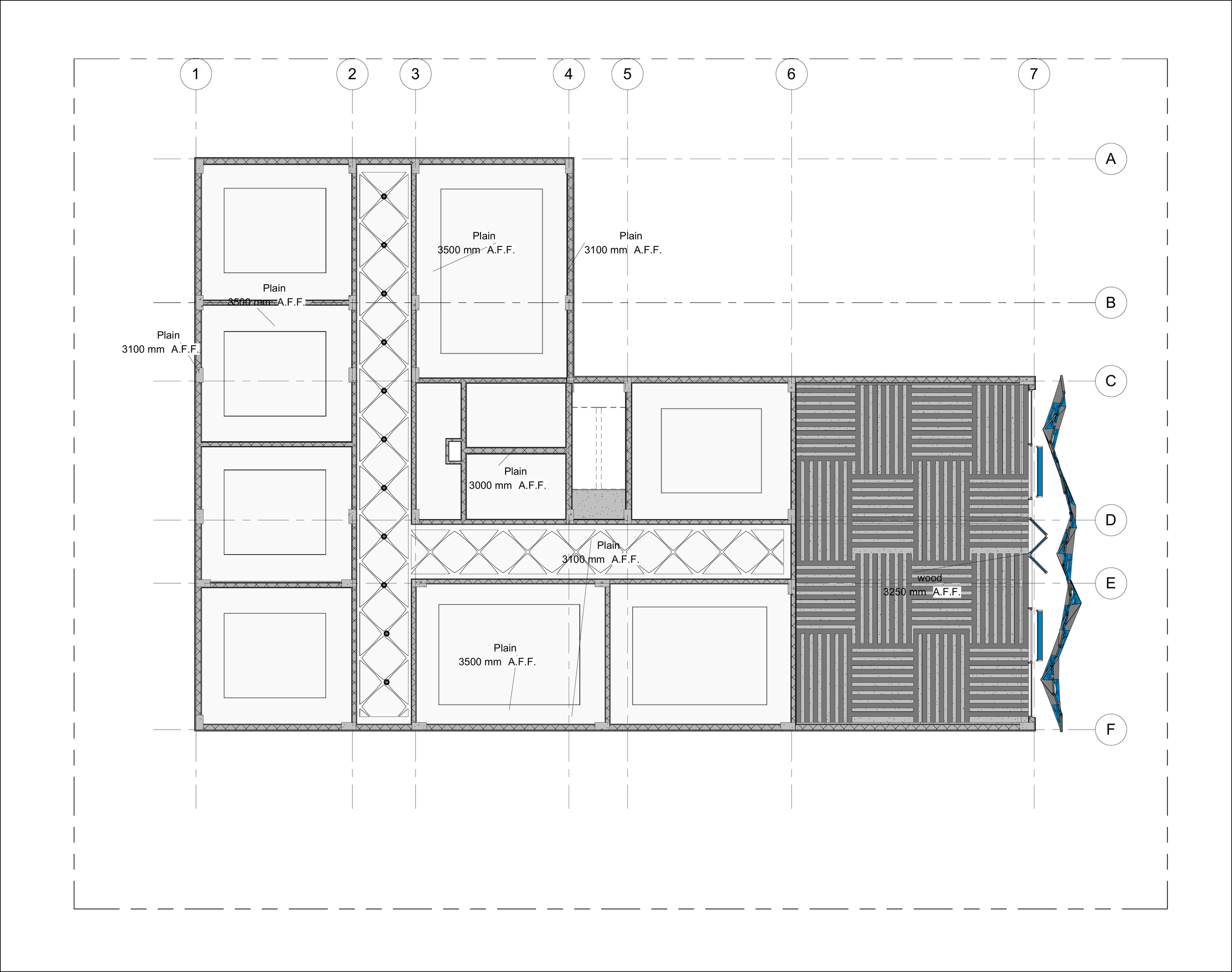
Ceiling Design

Ceiling Floor Plan

Ceiling 3D Visualization

MEP Design

HVAC Floor Plan

HVAC Section 1

HVAC Section 2

HVAC 3D Visualization

Plumping Floor Plan

Plumping Section 1

Plumping Section 2

Plumping 3D Visualization